Copyright 2026 中工黔诚设计(集团)有限公司 版权所有. 地址:贵州省贵阳市观山湖区金阳北路7号麒龙CBD·B2座16楼 电话:0851-85977045 18786000326 黔ICP备2023002027号
标题:贵州亚杰现代化数字能源仓储物流产业园
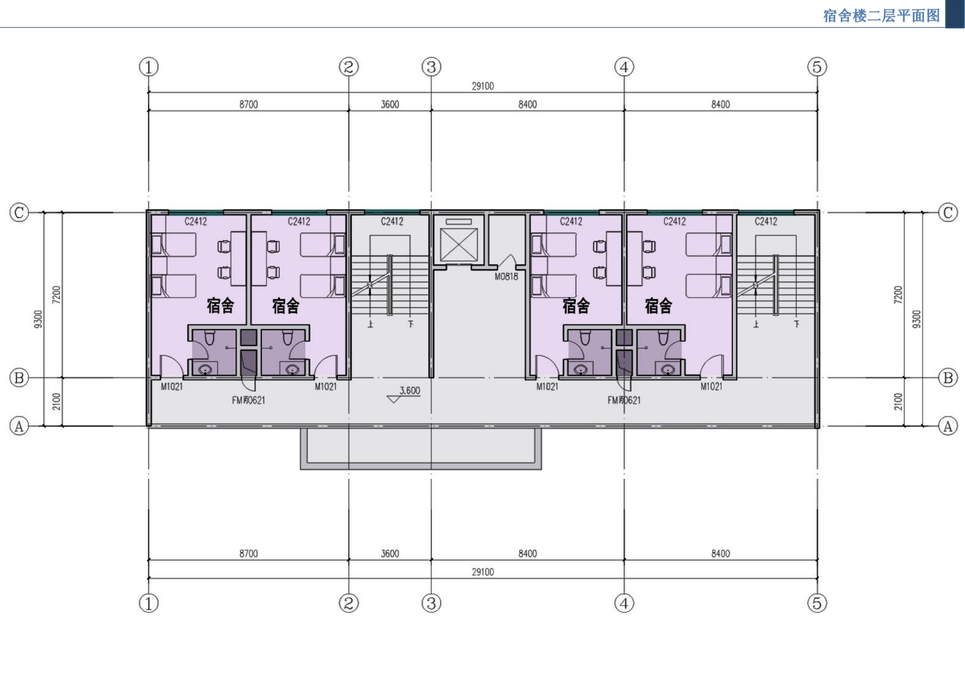
概要:项目位于毕节市大方县东关乡,各地块周边配套较为成熟,水电路具全,用地性质满足。本项目建设内容包括:新建宿舍楼,办公楼(一层为食堂)、值班室、地磅房、库房、物流车间。 本项目总用地面积为48883.76㎡,总建筑面积为45419.62㎡(计容面积为:45419.62 ㎡)建筑占地总面积为21820.19㎡:其中新建宿舍楼面积为1141.56㎡,占地面积为278.36㎡办公楼(一层为食堂)面积为2751.20㎡占地面积为550.24㎡:值班室面积为42.00㎡、占地面积为42.00㎡:地磅房面积为43.24㎡,占地面积为43.24㎡;库房面积为371.08㎡、占地面积为371.08㎡;物流车间面积为41070.54㎡占地面积为20535.27㎡(物流车间计容面积以两层计算)。本项目用地主要为建材仓储物流基地,物流车间管理运输货物,库房用以储存材料,车间及库房的防火等级为丙类;基地内建设办公室,并建设食堂、员工宿舍等建筑,为员工提供生活保障及舒适的居住环境,建设停车位共计19个其中11个位运输货车停车位。
扫码关注微信
中工集团
Copyright 2026 中工黔诚设计(集团)有限公司 版权所有. 地址:贵州省贵阳市观山湖区金阳北路7号麒龙CBD·B2座16楼 电话:0851-85977045 18786000326 黔ICP备2023002027号